kubusarhitekturalavričeva4a1000 ljubljana+386 40 425 969
2015
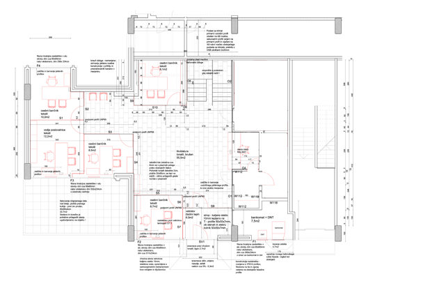
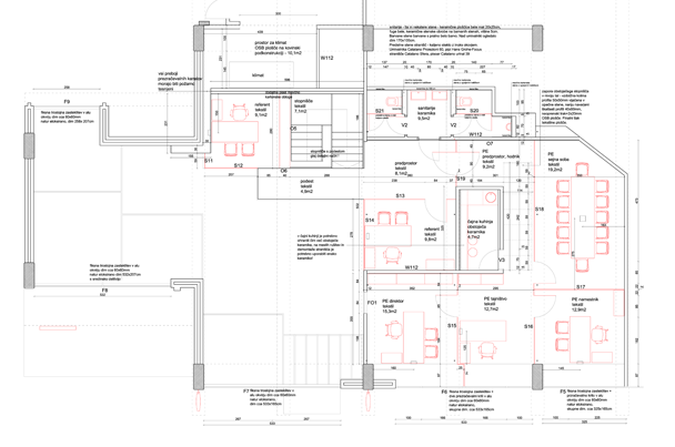
prenova in oprema>
Kaja Lipnik Vehovar
Arne Vehovar